Unitized Curtain Wall

WICTEC 60 EL

The WICTEC 60EL range allows the realisation of modular aluminium curtain walling. A slimline version of the modular facade, this curtain walling offers viewing widths of 60mm both inside and outside for a minimalist aesthetic. The exterior profiles are mitered which provides a particularly elegant picture-frame effect. The principle of the range is simple, since it’s based on the complete manufacture of all glazed elements in the workshop with their installation on special brackets.

Since most of the design is carried out in a secure and controlled environment, work on site is easier and quicker. For everyone, unitised facades are the assurance of a fast, safe and economical solution. In addition, the WICTEC 60EL unitised facade features optimised thermal insulation with exceptional Ucw values of up to 0.9 w/ (m2K). You can therefore count on its technical performance.

Technical Specifications

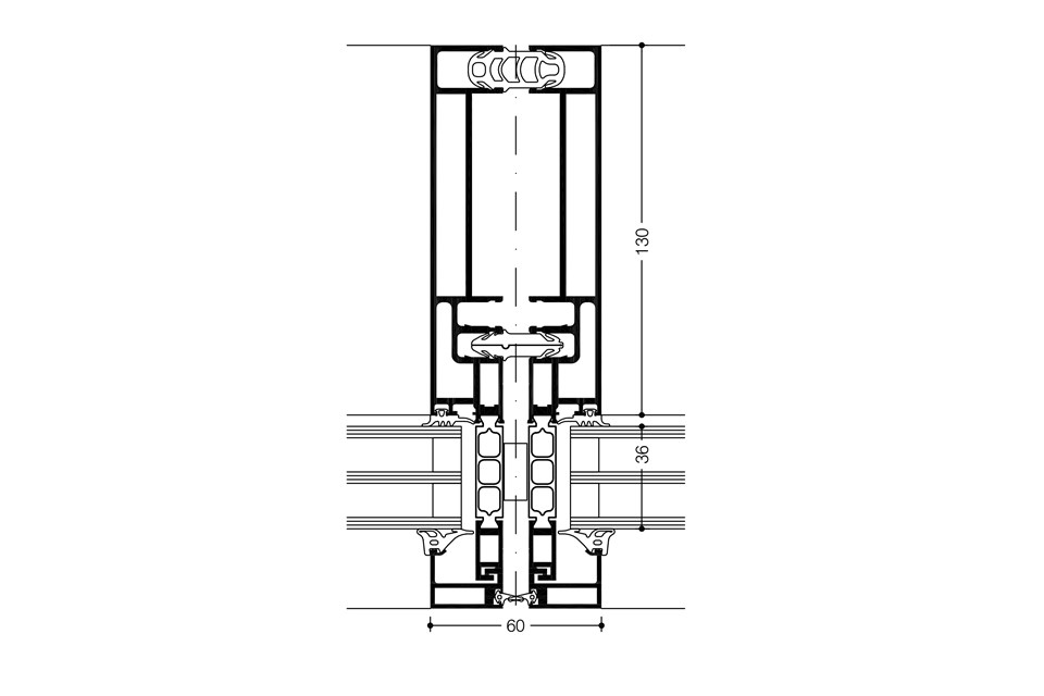
System Overview for WICTEC EL60

  • WICTEC EL60 is a unitised curtain wall system that can be individually adapted to meet specific project requirements
  • Manufacture of complete units in workshops to avoid any weather impact and thus ensure constant product quality
  • Fast, efficient and scheduled assembly on site
  • High thermal insulation aluminum composite profiles produced in a quality assured and controlled production
  • Narrow view widths of 60mm only for split and undivided profiles
  • Stiles and crossbars have the same profile depth
  • Reliable corner connections thanks to brackets
  • Quick and easy installation on the job site using dedicated anchoring devices

 

Technical Peformance

  • System width : 60 mm
  • Profile depth: 198 mm
  • Thermal insulation: Uf for integral fenestration up to 1.6 W/(m²K), Uf for frame combinations up to 1.8 W/(m²K) and Ucw up to 0.9 W/(m²K)
  • Infill thickness: Up to 36 mm as standard system (greater on request)
  • Unit sizes : (w x h) up to 2800 mm x 3500 mm, up to 1500 mm width without integral mullions

System test results / CE product pass in accordance with DIN EN 13830

Air permeability

Class AE

Water tightness

RE 1200

Resistance to wind load

2000 / –3200 Pa, security 3000 / –4800 Pa

Impact resistance

Class E5 / I5

Quality assurance

Certified according to ISO 9001:2008

Environmental management

Certified according to ISO 14001