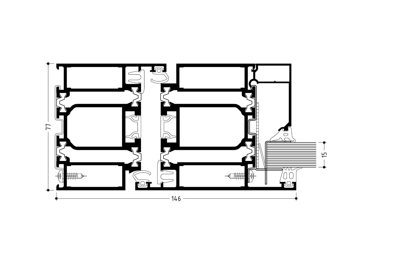
WICSTYLE 77 FP

WICSTYLE 77 FP

This aluminium door in modular set-up fulfills the requirements of class EI30 and/or class T30/F30 for single and double-leaf doors without the need for fire protection inserts. Simply by adding these, class EI60 and/or T60/F60 are achieved. A full range of fanlight or fixed top or lateral glazings assure a comprehensive application range.

Technical Specifications

Profile technology

  • Approved by building authorities
  • CE marking according to DIN EN 16034 EI2 30-C5S200
  • Execution in fire protection classes EI30/T30/F30 without fire protection inserts
  • Execution in fire protection classes EI60/T60/F60 simply by adding fire protection inserts
  • For single and double leaf hinged doors, inward and outward opening
  • Fixed glazings, lateral lights and fanlights possible in many options
  • Identical profile elevation as in the door series WICSTYLE 65 NG and WICSTYLE 75 NG, allowing for a unique design in a building project

Hardware

  • Butt hinge or screwed hinges in the same design as for WICSTYLE standard series, leading to a harmonised building design
  • Extensive fittings for requirements such as panic functions, emergency exit seals, electric safety locks,electronic openers, revolving door drive with magnet and bolt contact
  • Max. leaf sizes (w x h): up to 1462 mm x 2990 mm (single leaf), or 2943 mm x 2990 mm (double leaf)
  • Max. leaf weight: up to 260 kg

System test results / CE product pass in accordance with EN 14351-1:2006+A2:2016

Air permeability

Class 4

Water tightness

Class 6A

Resistance to wind load

Class C3 / B3

Burglar resistance

RC1N, RC2N, RC2, RC3

Approval in accordance with national regulations