WICLINE 115 AFS

With its new composite window system WICLINE 115 AFS, WICONA provides architects, planners and fabricators the solution for sophisticated projects with particularly high demands on thermal performance, acoustic insulation and sun protection – suited for both new build and renovations. The WICLINE 115 AFS composite window system combines an internal and external sash, creating a cavity between the two, which improves the system’s thermal and acoustic performance without additional measures.

Technical Specifications

Profile technology

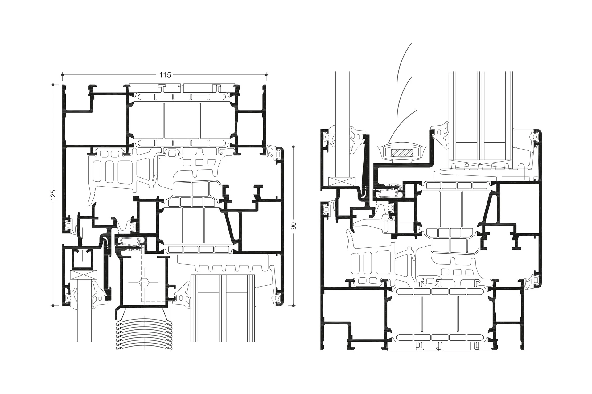
  • Profile depth: 115 mm
  • Construction depth: 125 or 135 mm
  • Infill thickness up to 48 mm (58 mm) and up to 100 mm with fixed glazing
  • Pressure compensation of the cavity
  • Optimised condensation performance within the cavity, officially confirmed by CSTB Institute in France
    (Centre Scientifique et Technique du Bâtiment)
  • Concealed blind system which is protected against weather conditions and dirt, no daylight penetration on
    the sides
  • Highest operating comfort
  • Easy installation, maintenance and cleaning due to independently operable outer sash
  • Optional sash with universal zone for sun protection

 

Profile sightlines

  • Frame profiles from 84 mm up to 94 mm
  • Transom profile from 128 mm up to 158 mm
  • Sash profile 35 mm

 

Thermal performance

  • Uw values below 0.80 W/(m²K) with a 115-mm frame depth and a sleek sight line of only 125 mm, a unit size
    of 1230 mm x 1480 mm and Ug value of 0.60 W/(m²K) at 0.031 W/(mK) psi

 

Sound insulation

  • Up tp 50 dB
    (Sound insulation glazing inside, single glazing outside)
  • Up to 43 dB
    (Insulated glazing inside, single glazing outside)